Премиальный паровой 3D электрокамин SappFire 1200

рейтинг: 0 из 5 Оставить отзыв 0 отзывов Оставить отзыв

Код товара: 260178 Производитель: SappFire

Стоимость товара:
278 670 р
262 290 р
Ваша выгода 6% или 16 380 рублей


    Описание

    Подсветка и регулирование пара:

    • Подсветка камина осуществляется светодиодным модулем
    • Пар регулируется вентиляторами, что экономит электроэнергию и не нагревает поверхности
    • Не создает эффект сауны, в отличие от каминов с галогенными лампами

    Технические характеристики:

    • Единый светодиодный модуль с ресурсом работы более 100 000 часов
    • Максимально бесшумная работа
    • Увлажняет и ионизирует воздух в помещении

    Режимы и функции:

    • 4 режима регулировки пламени по высоте
    • Автоматическая заправка с помощью встроенного насоса
    • Таймер сна, блокировка, защита от детей
    • Функция эффекта потрескивания дров

    Дизайн и управление:

    • Световой модуль закрыт черной матовой лентой для презентабельного вида
    • Управление через приложение со смартфона или пульт ДУ
    • Полностью безопасен для детей и животных

    Безопасность и обслуживание:

    • Система безопасности анализирует работу электрокамина
    • Гарантийное и сервисное обслуживание на всей территории России

    Дополнительные опции:

    • Подключение к водопроводу
    • Окрас в любой цвет RAL
    • Изготовление под заказ любого размера
    • Подключение к умному дому и Яндекс Алисе

    Инструкции, чертежи, документы - Премиальный паровой 3D электрокамин SappFire 1200

    Видео о SappFire 1200 паровой

    Характеристики

    Основные характеристики

    • Страна производства Россия
    • Производитель SappFire
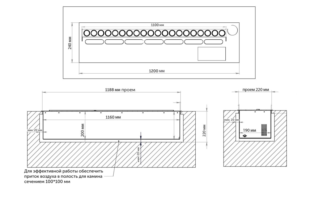
    • Высота, мм 200
    • Глубина, мм 240
    • Ширина, мм 1200
    • Вес, кг 26
    • Место установки Встроенный
    • Пульт Есть
    • Цвет Черный
    • Срок гарантии, лет 2
    • Страна производства Россия
    • Производитель SappFire
    • Высота, мм 200
    • Глубина, мм 240
    • Ширина, мм 1200
    • Вес, кг 26
    • Место установки Встроенный
    • Пульт Есть
    • Цвет Черный
    • Срок гарантии, лет 2

    Все характеристики

    Полезная информация
    Статьи
    Электрокамины Dimplex

    Реалистичный огонь. Порталы под Ваш интерьер. Разнообразие моделей. Современные возможности.

    Электрокамины Royal Flame

    Доступная роскошь. Эстетичность и эффектность моделей, разнообразие стилей и дизайна конструкции, практичность и универсальность.

    Справочный центр
    В справочном центре вы найдете ответы на самые частые вопросы. Как выбрать. Как купить. Как доставить. Как установить.
    Электрокамины RealFlame

    От вечной классики до остро модных хайтека и модерна.

    Современные электрокамины

    Оригинальность в сочетании с универсальностью.

    Магазины
    Где купить

    В Новосибирске работает авторизованный партнер Печь.ру – монтажная организация ИП Старовойтов А.В.
     Доставим камин до вашего дома. ИП Старовойтов А.В.  установит под ключ с гарантией на товар от производителя и на работы.

    Пункт самовывоза ТК "Деловые Линии"
    Адрес:
    г. Новосибирск, ул. Петухова, 73/1
    Время работы:
    пн. - пт.: 08:00 – 23:00
    сб. - вс.: 08:00 – 20:00
    Пункт самовывоза ТК "Деловые Линии"
    Адрес:
    г. Новосибирск, Сухарная ул., 35/1
    Время работы:
    пн. - пт.: 08:00 – 20:00
    сб.: 10:00 - 16:00
    вс.: выходной
    Пункт самовывоза ТК "Деловые Линии"
    Адрес:
    г. Новосибирск, Сухарная ул., 35/1
    Время работы:
    пн. - пт.: 08:00 – 20:00
    сб.: 10:00 - 16:00
    вс.: выходной
    Пункт самовывоза ТК "Деловые Линии"
    Адрес:
    г. Новосибирск, ул. Богдана Хмельницкого, 71/16
    Авиастроителей
    Время работы:
    пн. - пт.: 09:00 – 19:00
    сб. - вс.: выходной
    Почему мы?

    Почему мы?

    значок
    Демонстрация работы
    Бесплатно покажем по видеосвязи любую модель из выставочного зала. Более 100 каминов на выбор. Вам включать камеру не придется.
    значок
    Даем лучшую цену на товар
    Просчитаем проект с максимальной скидкой. Персональное предложение при звонке.
    значок
    Доставка транспортной компанией
    До терминала транспортной компании в вашем городе или до дверей. Все отправления застрахованы.
    значок
    Персональный подбор
    Бесплатно проконсультируем и подберем наилучший вариант.
    значок
    Товар в наличии
    Более 5000 складских позиций в наличии. Площадь собственных складов 2000 м2.
    значок
    100% гарантия
    Официальная гарантия от производителя на проданный товар. Не работаем по серым каналам и с нечестными поставщиками.
    Отзывы
    На данный момент нет ни одного отзыва

    Напишите свое мнение, если у вас был опыт использования данного товара.

    Оценить:
    Оставить отзыв
    Отзыв о товаре
    Оцените товар
    Поделитесь впечатлением о товаре
    Изображения
    Загрузите файлы в формате Png или Jpeg
    Видео
    Вы можете загрузить видео в формате mp4 и не более 100Мб
    Добавьте ссылку на видео
    Информация о покупателе
    Обратный звонок

    Сравнить.